Dji Fly 20240217 100454 0 1708160694936 Photo Low Quality
Framsida Arbeid og bustad Bustader og tomter Tomter Fjellheim panorama

Fjellheim panorama

Med rå utsikt og sentral beliggenhet er Fjellheim panorama eit spanande område under utvikling i sentrum av Vang. Og no kan du kjøpe tomt her! 

I Fjellheim Panorama bur du fritt og usjenert til. Her får du det beste av to verdener; kort veg til kommunesentrum med butikk, tannlege, legekontor, bibliotek, barnehage, skule, Vangshallen, bussforbindelse, kafe og bensinstasjon - og du har særdeles kort veg til fjells! 

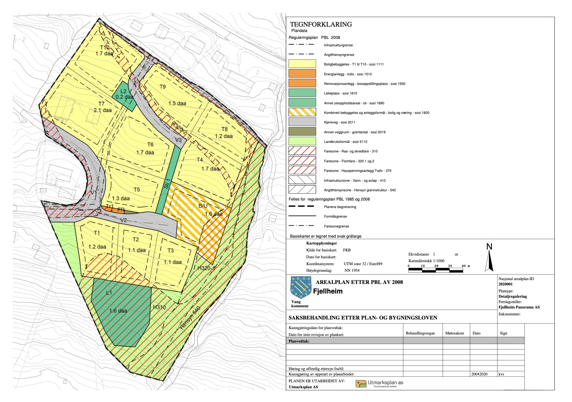
Åtte byggeklare råtomter er no ute for sal, og bygging kan starte allereie våren 2024. Alt av grunnarbeid må påregnes, men det ligg vatn/avløp, strøm og vei fram til alle tomtegrenser. 

I tillegg til tomtene som er for salg, har utviklarane også no prospektet på ein tomannsbolig klart. 

Er du interessert i Fjellheim Panorama og ynskjer meir informasjon, eller kanskje du vil ta ein titt sjølv? Då kontaktar du seljar Frank Hansen Thune. 

 

Sjå fleire bileter frå feltet og tomtekart i bildekarusellen nedanfor. 

Adresse
Bøagøta 50
2975 Vang i Valdres

Seljar
Fjellheim panorama v/
Frank Hansen Thune
Send e-post
Tlf: 992 67 364

Nøkkelinfo

– Sal av tomter med fantastisk utsikt 
- Kort veg til sentrum og til fjells
- Byggeklare våren 2024 
- Antall tomter tilgjengeleg: 8

 

Pris tomter Fjellheim

T1 – 390.000 kr
T2 – 390.000 kr
T3 – 390.000 kr
T4 – Solgt
T5 – 430.000 kr
T6 – 490.000 kr
T7 – Solgt
T8 – 350.000 kr
T9 – 420.000 kr
T10 – 470.000 kr

Fleir Tomter